「子供が生まれて、今の賃貸アパートが手狭に感じる…」
「家事と育児の両立が大変で、もっと効率的に暮らせる家に住みたい」
「子供がのびのびと安全に過ごせるマイホームが欲しい」
お子様の誕生や成長をきっかけに、新しい家づくりを考え始める方は多いのではないでしょうか。しかし、家づくりは初めての経験ばかりで、何から手をつければ良いのか分からないものです。特に、子育てしやすい家を実現するためには、どのような点に気をつければ良いのでしょうか。
この記事では、これから注文住宅や新築一戸建てを建てる子育て世代のあなたへ、後悔しないための「子育てしやすい家」の間取りアイデアや家づくりのポイントを、場所別・目的別に分かりやすく解説します。
先輩たちの失敗談から学ぶ対策や、家事を楽にする便利な設備まで網羅的にご紹介しますので、ぜひ最後まで読んで、あなたの理想の家づくりの参考にしてください。
この記事の目次
子育てしやすい家の間取りアイデア【場所別】
まずは、子育てしやすい家を実現するための間取りアイデアを、リビングやキッチンといった場所別に見ていきましょう。家族の暮らしをイメージしながら、ご自身の家庭に合ったアイデアを見つけてみてください。
【リビング】家族を見守りながら過ごせる空間

リビングは家族が最も長く過ごす場所です。子供の様子を見守りながら、家族みんなが快適に過ごせる空間づくりが重要になります。
- リビング階段
子供が自分の部屋に行く際に必ずリビングを通るため、自然と家族のコミュニケーションが生まれます。「ただいま」「おかえり」の挨拶が自然に交わされ、お子様の様子も分かりやすいのがメリットです。ただし、音が響きやすい、冷暖房の効率が落ちるといったデメリットもあるため、階段の入り口に引き戸やロールスクリーンを設置するなどの対策を検討すると良いでしょう。 - スタディコーナー
リビングやダイニングの一角にカウンターを設けることで、子供が宿題をする「スタディコーナー」になります。親の目が届く場所で勉強できるため、分からないことをすぐに質問できる安心感があります。 - 吹き抜け
リビングに吹き抜けを設けると、開放感と明るさが格段にアップします。高い位置の窓から光が差し込み、心地よい空間を演出できます。空調効率が気になる場合は、シーリングファンを設置して空気を循環させるのがおすすめです。
【キッチン】料理中も子供に目が届く対面式

子育て中の家づくりでは、キッチンからリビングやダイニングで遊ぶ子供の様子が見えることが非常に重要です。そのため、多くの家庭で対面式のキッチンが採用されています。
- アイランドキッチン・ペニンシュラキッチン
リビング・ダイニング側を向いて作業できるこれらのキッチンは、料理をしながらでも子供を見守り、家族と会話できるのが最大の魅力です。特にアイランドキッチンは壁から独立しているため、複数人でキッチンを囲んで作業しやすく、子供と一緒にお菓子作りなどを楽しむのにも最適です。 - キッチン横のダイニングテーブル
キッチンのすぐ横にダイニングテーブルを配置すると、配膳や後片付けがスムーズになります。忙しい朝の時間帯や、たくさんの料理を運ぶ際に動線が短いと、家事の負担が大きく軽減されます。
【玄関・土間収納】ベビーカーや外遊び道具を収納

子供が小さい頃は、ベビーカーや三輪車、外遊びのおもちゃなど、かさばるものが多くなりがちです。玄関周りの収納力は、子育て中の家の使いやすさを大きく左右します。
土間収納(シューズクローク)とは、玄関横に設けられた土足で入れる収納スペースのことです。ここにベビーカーや外遊びグッズ、パパのゴルフバッグなどを収納すれば、玄関はいつもすっきり。雨に濡れたレインコートをかけておくスペースとしても重宝します。
また、玄関の近くに手洗い場を設ければ、帰宅後すぐに手を洗う習慣が身につき、感染症対策にもなります。
【子供部屋】成長に合わせて変えられる柔軟な設計

子供部屋は、お子様の成長に合わせて使い方を変えられる「可変性」を持たせることがポイントです。
例えば、最初は兄弟で使える広い一部屋としておき、将来的に壁や可動式の間仕切り収納で二部屋に分けられるように設計しておくのがおすすめです。幼い頃は広々としたプレイルームとして使い、思春期になったらプライバシーを確保した個室にするなど、柔軟に対応できます。
また、子供が自分で片付けをしやすいように、おもちゃや服を収納する棚は目線の高さに合わせ、中身が見えるボックスを活用するなどの工夫も大切です。
【和室・畳コーナー】遊び場や昼寝スペースに活用

リビングに隣接する和室や畳コーナーは、子育て世代にとって非常に便利な多目的スペースになります。
畳はフローリングに比べて柔らかいため、子供が転んでも安心。おもちゃを広げて遊ぶプレイスペースとして最適です。また、赤ちゃんのお昼寝スペースや、おむつ替えの場所としても気軽に利用できます。
来客時には客間として使ったり、洗濯物をたたむ家事スペースとして活用したりと、一部屋あるだけで暮らしの幅がぐっと広がります。
【洗面室・脱衣室】朝の混雑を解消する広さと収納

家族が増えると、朝の洗面所は歯磨きや身支度で混雑しがちです。洗面室と脱衣室を分ける、またはスペースを広く取ることで、朝の支度がスムーズになります。
洗面室と脱衣室を分ければ、誰かがお風呂に入っていても気兼ねなく洗面台を使えます。また、洗面カウンターを広くして2人並んで使えるようにしたり、洗面ボウルを2つ設置する「ダブルボウル」にしたりするのも良いでしょう。
さらに、タオルや下着、パジャマなどを収納できるリネン庫を設けることで、入浴や着替えの準備がその場で完結し、動線が非常にスムーズになります。
内観・外観イメージは具体的にお持ちでしょうか?
家事と育児を楽にする動線・収納計画
子育てしやすい家づくりにおいて、「動線」と「収納」は最も重要な要素と言っても過言ではありません。効率的な動線と適材適所の収納計画で、日々の家事負担を大幅に減らしましょう。
キッチン中心の回遊動線で家事効率アップ

回遊動線とは、家の中を行き止まりなくぐるりと移動できる動線のことです。特に、キッチンを中心に洗面室やパントリーなどをつなぐ動線は、家事効率を劇的に向上させます。
例えば、「キッチン → パントリー(食材を取る) → 洗面室(洗濯機を回す) → リビング(子供の様子を見る) → キッチン」といったように、複数の家事を同時進行しやすくなります。移動のストレスが減り、時間に追われる子育て世代の大きな助けとなるでしょう。
「おかえり動線」で片付け習慣を身につける

おかえり動線とは、玄関に帰ってきてからリビングでくつろぐまでの一連の流れをスムーズにする動線計画です。この動線を整えることで、子供が自然と片付けの習慣を身につけやすくなります。
理想的な流れは以下の通りです。
- 玄関
靴を脱ぐ - 土間収納・クローク
上着をかけ、カバンを置く - 洗面所
手を洗う・うがいをする - リビング
リラックスする
この流れがスムーズだと、「リビングに上着やランドセルが置きっぱなし」という事態を防ぎ、家が散らかりにくくなります。
衣類を一括管理できるファミリークローゼット
ファミリークローゼットとは、家族全員の衣類を1ヶ所にまとめて収納するスペースのことです。洗濯物をたたんで各部屋のクローゼットにしまう手間がなくなり、家事負担を大きく軽減できます。
洗面脱衣室の近くに設置すれば、「洗濯 → 乾燥 → 収納」という一連の作業が最短距離で完結します。ハンガーパイプを多めに設置し、「たたむ」のではなく「かける」収納をメインにすると、さらに時短につながります。
食品ストックに便利なパントリー

パントリーとは、キッチンに隣接して設けられる食品庫のことです。まとめ買いした食品や飲料、日用品などをストックできるため、買い物に行く回数を減らせる子育て世代の強い味方です。
災害時の備蓄品を保管する場所としても役立ちます。棚を可動式にしておけば、収納するものに合わせて高さを自由に変えられるため、スペースを無駄なく活用できます。
リビング学習も可能なリビング収納

子供のおもちゃや絵本、学用品、そして家族みんなが使う書類など、リビングは意外と物であふれがちです。リビングに十分な収納スペースを確保することで、散らかったものをすぐに片付けられ、すっきりとした空間を保てます。
来客時に生活感を隠せる扉付きの収納や、子供が自分で片付けやすいように目線の高さに合わせた収納を設けるのがおすすめです。スタディコーナーの近くに学用品をしまえる収納があれば、リビング学習もよりスムーズになります。
内観・外観イメージは具体的にお持ちでしょうか?
【失敗談】家づくりの後悔ポイントと対策
ここでは、実際に家を建てた子育て世代の先輩たちが感じた「後悔ポイント」と、その対策をご紹介します。失敗談から学ぶことで、あなたの家づくりを成功に導きましょう。
収納の量と場所が暮らしに合わない
最も多い後悔が収納に関するものです。「収納はたくさん作ったはずなのに、使いにくくて物があふれてしまう…」という声は少なくありません。
- 後悔ポイント
奥行きが深すぎる収納、使う場所から遠い収納など、暮らしの動線に合っていない。 - 対策
家を建てる前に「何を」「どこに」「どれくらい」収納したいかを具体的にリストアップしましょう。そして、掃除機はリビングの収納に、トイレットペーパーはトイレの収納に、というように「使う場所の近くに収納を設ける」のが鉄則です。
コンセントの位置と数が足りない
「ここにコンセントがあれば…」と、暮らし始めてから気づくことが多いのがコンセント問題です。
- 後悔ポイント
掃除機をかける時に不便、スマートフォンの充電場所がない、季節家電(扇風機やヒーター)を使いたい場所にコンセントがない。 - 対策
家具の配置を具体的にイメージしながら、コンセントの位置と数を計画しましょう。ダイニングテーブルの近く(ホットプレート用)、収納の中(コードレス掃除機の充電用)、玄関(電動自転車の充電用)など、あると便利な場所を細かく検討することが後悔を防ぐコツです。
リビング階段の音・空調問題
家族のコミュニケーションを促すリビング階段ですが、音や空調に関する後悔も聞かれます。
- 後悔ポイント
2階の子供部屋の音がリビングに筒抜けになる。冬場に2階からの冷たい空気が下りてきて寒い。 - 対策
音の問題は、階段の入り口に引き戸を設置する、寝室のドアを防音性の高いものにするなどの対策が有効です。空調については、高気密・高断熱の住宅性能を確保することが大前提ですが、シーリングファンで空気を循環させたり、階段の上下にロールスクリーンを設置したりすることで改善できます。
掃除しにくい素材やデザインの選択
デザイン性を重視した結果、日々の掃除が大変になってしまったというケースです。
- 後悔ポイント
凹凸の多い壁紙はホコリがたまりやすい。おしゃれな照明器具は掃除が面倒。 - 対策
子育て中は「掃除のしやすさ」を優先するのが賢明です。床材は溝が浅いもの、壁紙は汚れが拭き取りやすい機能性クロスを選ぶと良いでしょう。また、家具を床から浮かせる「フロートタイプ」にすると、ロボット掃除機もスムーズに動けて便利です。
子供の成長で間取りが使いにくくなった
幼少期には最適だった間取りが、子供の成長とともに使いにくくなることがあります。
- 後悔ポイント
子供が思春期になり、リビング階段だとプライバシーがないと嫌がるようになった。オープンすぎた子供部屋を仕切りたくなった。 - 対策
家づくりでは、10年後、20年後の家族の姿を想像することが大切です。子供部屋は将来的に仕切れるようにしておく、家族それぞれのプライベートな時間も尊重できる書斎や個室を検討するなど、長期的な視点で間取りを計画しましょう。
内観・外観イメージは具体的にお持ちでしょうか?
子育てを助けるおすすめ設備・仕様
最新の設備や仕様を取り入れることで、日々の家事や育児はもっと楽になります。ここでは、子育て世代に特におすすめの設備・仕様をご紹介します。
食器洗い乾燥機で後片付けを時短
面倒な食器洗いの手間と時間を大幅に削減できる食洗機は、共働き・子育て世代の必須アイテムです。後片付けの時間がなくなるだけで、食後に子供と向き合う時間や、夫婦でゆっくりする時間を生み出せます。手洗いよりも水の使用量が少ないため、節水効果も期待できます。
ガス衣類乾燥機で洗濯物をすぐ乾かす
「乾太くん」などのガス衣類乾燥機は、洗濯物をパワフルな温風で一気に乾かし、天日干しよりもふわふわに仕上げてくれます。雨の日や花粉の季節でも洗濯物の心配がなく、夜に洗濯しても翌朝には乾いているため、洗濯のストレスから解放されます。
手が汚れていても便利なタッチレス水栓
センサーに手をかざすだけで水を出したり止めたりできるタッチレス水栓は、衛生的で節水にもつながります。ハンバーグをこねた後の汚れた手や、子供が泥んこで帰ってきた時でも、蛇口を汚さずに手を洗えるのが大きなメリットです。
不在時も安心の宅配ボックス
ネットショッピングが当たり前になった今、不在時でも荷物を受け取れる宅配ボックスは、共働き家庭の再配達ストレスを解消してくれます。時間を気にせず外出できるだけでなく、配達員と対面せずに済むため、防犯面でも安心です。
汚れや傷に強い床材・壁紙の選び方
子供は食べ物や飲み物をこぼしたり、おもちゃで床や壁を傷つけたりするものです。あらかじめ汚れや傷に強い素材を選んでおくことで、親のストレスを減らすことができます。
- 床材
傷に強いコーティングが施されたフローリングや、耐水性・防音性に優れたクッションフロアなどがおすすめです。 - 壁紙
表面がフィルムでラミネートされ、汚れを拭き取りやすい「汚れ防止壁紙」や、傷に強い「スーパー耐久性壁紙」といった機能性壁紙を選ぶと良いでしょう。
内観・外観イメージは具体的にお持ちでしょうか?
【坪数別】子育て世代の建築実例と間取り図
最後に、子育てしやすい家のイメージをより具体的にするために、坪数別の建築実例と間取りのポイントをご紹介します。
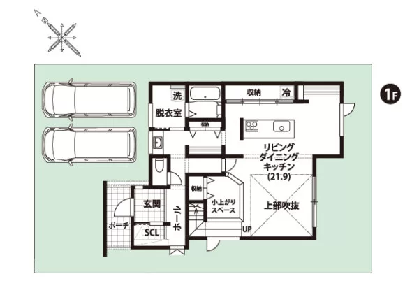
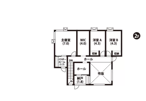
30坪台・4人家族の家事ラク動線の家


限られた面積を最大限に活用し、コンパクトな家事動線を実現した間取りが特徴です。
- 間取りのポイント
1階にキッチン・洗面室・脱衣室・ファミリークローゼットを集中させ、ぐるりと回れる回遊動線を採用。LDKは一体感のある空間にし、リビング階段で視線の抜けを作ることで、実際の面積以上の広がりを感じさせます。2階には主寝室と、子ども部屋2つの他、書斎を配置します。
35坪台・3人家族の収納が充実した家


「適材適所」の収納計画で、常にすっきりと片付く暮らしやすさを追求した間取りです。
- 間取りのポイント
玄関にはベビーカーもしまえる大容量のシューズクローク、キッチン横にはパントリーを設置。リビングにも壁面収納を設け、散らかりがちなものをすぐに片付けられるようにします。2階のホールを広めに取り、家族で使える本棚やスタディカウンターを設けるのも人気のアイデアです。
40坪台・4人家族のびのび暮らせる家


全体の空間にゆとりを持たせ、家族が集まる時間とそれぞれのプライベートな時間の両方を大切にできる間取りです。
- 間取りのポイント
広々としたLDKに加え、客間や書斎としても使える独立した和室やDEN(書斎スペース)を設けます。洗面室と脱衣室を完全に分離し、朝の混雑を解消。リビングからつながるウッドデッキを設ければ、天気の良い日には子供の遊び場や、家族でバーベキューを楽しむアウトドアリビングとして活用できます。
内観・外観イメージは具体的にお持ちでしょうか?
まとめ
後悔しない「子育てしやすい家」を建てるためには、現在の暮らしの悩みや不満を洗い出し、将来の家族の姿を想像しながら計画を進めることが大切です。
この記事でご紹介した、子育てしやすい家づくりのポイントをまとめます。
- 見守りやすい間取り
キッチンから子供の様子が見える対面キッチンや、家族の顔が見えるリビング階段を取り入れる。 - 効率的な家事動線と収納
回遊動線やファミリークローゼットで家事の負担を減らし、適材適所の収納で散らからない仕組みを作る。 - 将来を見据えた可変性
子供の成長に合わせて間取りを変更できる、柔軟な設計を心がける。
家づくりは、家族の未来を創る一大プロジェクトです。この記事が、あなたの家族にとって最高の「子育てしやすい家」を実現するための一助となれば幸いです。たくさんの情報を集め、家族でじっくりと話し合いながら、理想のマイホームづくりを楽しんでください。
内観・外観イメージは具体的にお持ちでしょうか?
家づくりのご相談は”ロゴスホーム”へ
子育てしやすい家づくりをするなら、ロゴスホームへご相談ください。
ロゴスホームではお客様のご要望に合わせて、お子様がのびのび暮らせる間取りや、家事を並行して進めやすい間取りをご提案いたします。
子育てで大切にしたいことや理想のライフスタイルなど、家づくりで形にしたいことについて、ぜひお聞かせください。
ロゴスホームの快適さを体感できるモデルハウスや完成見学会も開催中です。
▶公開中のモデルハウス情報はこちら









