\2棟同時に見学できます♪/

音更町南鈴蘭南1丁目
モデルハウス

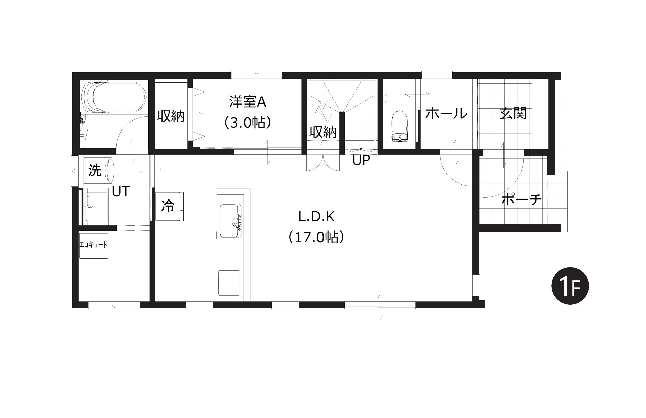
Floor Plan


\注目ポイントを一部紹介!/

POINT -01-
ナチュラルカラーの
開放的なLDK
白を基調とした開放的なLDK。ダイニング横にはニッチを備えちょっとしたおしゃれなワンポイントになるだけでなく、コンセント付きで家電や充電、小物の収納にも便利に活用できるスペースに仕上げました。

POINT -02-
暮らしを整える家事ラク動線
ユーティリティーに加え、家事がはかどるランドリースペースを設計。洗濯から干す・畳むまでの動線を考慮し、毎日の暮らしが自然にスムーズになり、快適で心地よい空間に仕上げました。

POINT -03-
やわらかな光が広がる主寝室
主寝室にはベッドフレームのような曲線に沿って間接照明を設置。やわらかな光が空間を包み込み、デザイン性と心地よさを両立したくつろぎの空間に仕上げました。

POINT -04-
まるごと片付くファミリークローゼット
2階には各所のクローゼットに加え、ファミリークローゼットを設置。衣類はもちろん、布団や季節家電までたっぷり収納可能で、1年を通していつも片付いた快適な空間をキープできます。

POINT -05-
使い勝手のいい
ホールカウンター
2階ホールにはキャビネット付きカウンターを設置。小物や本の収納はもちろん、作業や読書スペースとしても活用できる、多用途で便利な空間に仕上げました。
※画像はイメージ写真です。実際の建物とは異なります。

■見学予約特典■
期間中の見学予約などの条件達成で最大30,000円分の電子マネーをプレゼント!
※各エリアでキャンペーン条件が異なります。
<本キャンペーン注意事項>
◆ 本キャンペーンは、2026年1月13日〜2026年2月15日までの期間中に見学予約の上、見学いただいた新規のご家族様全員が対象となります。
※ご見学の前日までのご予約が必要となります。
◆ 一部のキャンペーンは同時に利用できますが、他のキャンペーンは併用できません。詳しくは店舗までお問い合わせください。
◆ ご見学日の前日までに「ご来場前アンケート」に回答、ご見学で10,000円分の電子マネーのプレゼントの対象になります。
◆ 来場前アンケートのご案内メールが届かない場合は、ご見学日の前日までに店舗までお問い合わせ下さい。予約日を過ぎてからのお問い合わせは対象外とさせていただきます。
◆ さらに、2026年2月15日までの期間内に住宅ローンの事前審査の申込みで20,000円分の電子マネーのプレゼントになります。
◆ 一部のエリアはキャンペーン条件が異なります。詳しくは店舗までお問い合わせください。
※旭川、栃木エリアは ご見学日の前日までに「ご来場前アンケート」に回答、ご見学で5,000円分の電子マネーのプレゼントの対象になります。
※青森、岩手、名古屋、四日市エリアは ご見学日の前日までに「ご来場前アンケート」に回答、ご見学で10,000円分の電子マネーのプレゼントの対象になります。
◆ 本キャンペーンは弊社ホームページから見学予約をいただいた方のみ対象とさせていただきます。
◆ 本キャンペーンはご見学の上、見学時のアンケートに回答いただいた方のみ対象とさせていただきます。
◆ 本キャンペーンは住宅の購入および建築を検討されている、新規のご家族様が対象となります。
◆ 本キャンペーンは日本に永住権をお持ちの方のみが対象です。
◆ 本キャンペーンはご見学時に、ご夫婦そろって身分証明できるもの(名刺、保険証など)を弊社担当にご提出いただける方が対象となります。
※身分証明できるものはコピーや写真として保管し、商談終了後は速やかに破棄します。
◆ 本キャンペーンは1時間以上のお打ち合わせ時間を確保できる方のみが対象となります。
◆ 本キャンペーンの参加はロゴスホーム、ハウジングカフェの過去のキャンペーンを含めて、ひと家族1回限りとさせていただきます。
◆ 予約時のメールアドレスとアンケート回答のメールアドレスは同一のものをご入力ください。
◆ メールアドレスが異なる場合にはキャンペーン集計に誤りが発生する場合がございます。ご了承ください。
◆ 本キャンペーンは予告なく終了することがございます。ご了承ください。
◆ 電子マネーのお渡しは対象者様全員へ、2~3週間程でメールにて送付いたします。
◆ 本キャンペーンについてのお問い合わせは Amazon ではお受けしておりません。
◆ Amazon、Amazon.co.jp およびそれらのロゴは Amazon.com, Inc.またはその関連会社の商標です。
◆ 詳しいお問い合わせは 店舗までご連絡お願いいたします。






